摘 要:本文以北京市某超算数据中心项目为例,介绍了超算数据中心空调及相关工艺设计方案,以及超算数据中心和常规数据中心在工艺布置上、空调方案选择上的对比,并提出了相应的措施。
关键词:超算数据中心 工艺设计 空调设计 节能
引 言
本文以北京市某超算数据中心的空调设计方案为例,对超算数据中心空调设计进行分析,以便为今后的同类项目做参考。
1、工程概况
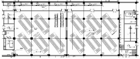
超算机房布置平面图详见图1:

图1 超算数据机房平面布置图
2、超算数据中心的特点
根据《数据中心设计规范》GB 50174-2017[1]中,常规数据中心主机房的使用面积可按照下式计算:
A=SN (1)
式中:A 为主机房的使用面积,m2;S 为单台机柜(架)、大型电子信息设备和列头柜等设备占用面积,可取2.0m2~4.0m2/台;N 为主机房内所有机柜(架)、大型电子信息设备和列头柜等设备的总台数。
该项目各个功能房间面积见表1。
表1 超算机房各房间面积

由表1可以看出:
(1)超算机房由于设置液冷空调,采用一拖二的构架,空间占用比普通的数据机房要多,同时单机柜占用面积增大,有助于室内热量排出。
(2)变配电室面积约为1500m2,1kW机柜电量所占的变配电室面积为0.3m2/kW。超算数据中心1kW机柜电量所占的变配电室面积为0.07m2/kW,所占面积减少。分析可得,由于超算机房计算节点机柜、相应的高压直流配电柜、AI设备机柜采用单路供电,而常规数据机房采用双路供电,且一路为UPS供电,因此1kW机柜电量超算所占面积比常规数据机房较小[2]。
3、超算机房空调系统设计
空调室内设计参数见表2[3-4]:
表2 超算机房室内设计参数

超算机房设备参数见表3:
表3 超算机房设备参数

各空调系统冷热负荷见表4:
表4 空调冷热负荷

为了维持超算机房及存储机房内的舒适度的要求,考虑设备对房间的散热,设置了多联机系统,满足人员对环境温湿度的要求。该工程根据不同房间,共设置三套多联机系统满足舒适度需求。
(1)中温冷冻水系统
该超算机房中温冷冻水冷负荷为5847.7kW,共设置离心式冷水机组,单台制冷量为3500kW共三台,两用一备,冷冻水供回水温度为12/18℃,冷却水采用冷却塔散热,供回水温度为33/38℃,考虑到系统全年供冷运行的需求,冷却塔选型要按照北京全年极端最高湿球温度31℃的情况下,冷却水温为33/38℃来选型,所选单台冷却塔设计状态下的循环水量为705m3/h。为了保证该系统不间断供冷的需求,在空调系统中设置了三个有效容积为70m3的闭式卧式蓄冷罐,平时为蓄冷状态,当市电故障时,柴发机组并机完成之前,满足15分钟全负荷供冷量的需求。该系统冷却塔、冷却水泵、离心式冷水机组、板式换热器、一次冷冻水泵均为一一对应设置[4]。
充分考虑节能需求,该系统有三种运行工况:电制冷工况、部分免费供冷工况、全部免费供冷工况。电制冷工况:当室外为夏季时,全部采用离心式冷水机组提供冷量,通过开式冷却塔散热的方式供冷。部分免费供冷工况:采用冷水机组+板式换热器+冷却塔作为冷源供冷,根据室外湿球温度变化,采用冷却水通过板式换热器对冷冻水进行预降温处理,实现部分自然冷却供冷,减少机械制冷能耗。过渡季可提供30%~70%自然冷却供冷。全部免费供冷工况:优先采用办公区热泵机组冷水供冷,在满足热泵机组向全楼供热的同时,机房区供冷不足部分,采用机房区冷却塔作为补充冷源。机房区冷水供/回水温度为12/18℃,全楼热泵机组热水供/回水温度55/49.5℃,机房区冬季冷却塔进出水温度14.3/10℃。
为保证数据中心系统用水的可靠性,设置冷却塔补水池,补水池按照12小时冷却水补水量的要求设置。补水池的蓄水量为260m3的蓄水池。
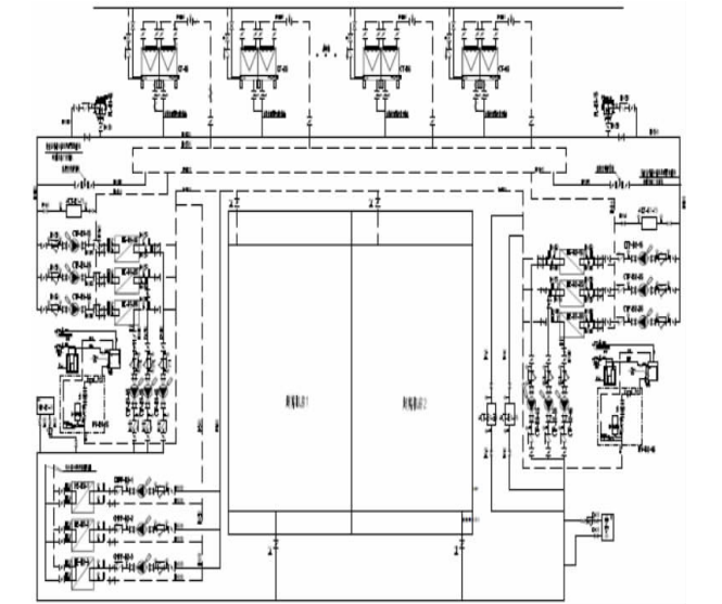
(2)中温冷却水系统
该超算机房中温冷冻水冷负荷为25714kW,为超算机房的主要负荷。中温冷却水系统末端空调夏季供回水温度为35/43℃,冬季供回水温度为29/21℃。由于该部分负荷量较大,水温较高,考虑空调系统节能及节约建筑空间等综合因素,确定该系统采用冷却塔+板式换热器供冷的形式。考虑15%的备份需求,单台板式换热器换热量为5000kW,共6台,6用,冷却塔共6台,供回水温度夏季供回水温度为33/41℃,冬季供回水温度为16/24℃,设计状态下单台冷却塔的循环水量为540m3/h。板式换热器、冷却塔、冷源侧冷却水泵、用户侧冷却水泵均为一对一设置。
空调水系统一次侧和二次侧均为环状设置,满足系统灵活、安全运行的需求,该系统冷却塔设置于一层地面,其他设备均分设置于地下两个换热站内。
中温冷却水空调系统图见图2:

图2 超算数据机房中温冷却水空调系统图
该系统全年冷源为冷却塔供冷,在冬季要考虑冷却塔防冻要求,根据实际运行负荷,适当预留备份冷源,将其他冷却塔放空,在备份冷却塔上也要考虑冷却塔和管路的电伴热及采用带风机反转功能的冷却塔等方式,防止冷却塔冻结,无法运行的风险发生。
4、超算机房和常规数据机房的设计情况的汇总
超算机房和常规数据机房设置情况有以下不同:
(1)超算计算节点柜是通过液冷CDM空调柜来供冷,液冷CDM空调在供冷的同时,定时会释放出制冷剂气体,每个机柜均有一个放气管,在通风设计时,要充分考虑气体的排放情况。
(2)超算机房由于机柜本身发热量较大,对周围环境的散热量较大,所以,在超算节点机房设计时,要充分考虑机柜对周围环境的散热,本工程采用多联机的系统形式,为环境供冷。
(3)超算机房计算节点机柜由于负载较大,电缆较多,要充分考虑电缆的散热,若电缆为下进线时,要充分考虑架空地板下及相关强电井内电缆的发热量。
(4)超算机房配套的高压直流配电柜的负荷较大,要根据其实际散热负荷情况,考虑不同的空调形式。本工程由于高压直流配电柜单机柜发热量约为15kW,且最高温度不超过40℃,因此,空调末端采用热管式背板空调,通过换热器实现冷媒和中温冷冻水的换热,从而解决了机柜热点和兼顾节约建筑空间的目的。
(5)超算机房虽然总负载量比较大,但是计算节点为单路供电,和常规的数据机房相比较,相同负荷所占的变配电室面积较小。
5、结语
由于近几年超算数据中心不断发展,由最初的十几千瓦到现在的一百多千瓦,以后可能还有更多荷载的超算机柜出现,因此,超算机房的设计及相关的节能问题也是亟须研究的课题。在超算机房由于具有负载量跨度比较大,且运行中负荷变化情况与其所处的行业类型有关,因此,不能一概而论,要在满足其最大使用负荷的情况下,充分考虑设备的最低负荷,以及系统灵活运行的特点。
[1] GB 50174-2017数据中心设计规范[S].北京:中国计划出版社,2017.
[2] GB 50736-2012民用建筑供暖通风与空气调节设计规范[S].北京:中国建筑工业出版社,2012.
[3] 王晶.上海超算中心机房基础设施建设与管理[J].建筑电气,2010,30(9):69-72.
[4] 中国建筑设计研究院·暖通空调·动力[M].北京:中国计划出版社,2009.
来源:《建筑热能通风空调》、CDCC
作者:中国建筑设计研究院有限公司 王玉峰 陈露
免责声明:转载其他网站内容,出于传递更多信息而非盈利之目的,同时并不代表赞成其观点或证实其描述,内容仅供参考。版权归原作者所有,若有侵权,请联系我们删除。




